Town House Exclusive
1️⃣ Desain Fasad




Town House Exclusive yang kami bangun berlokasi di Jatimulya, Depok.
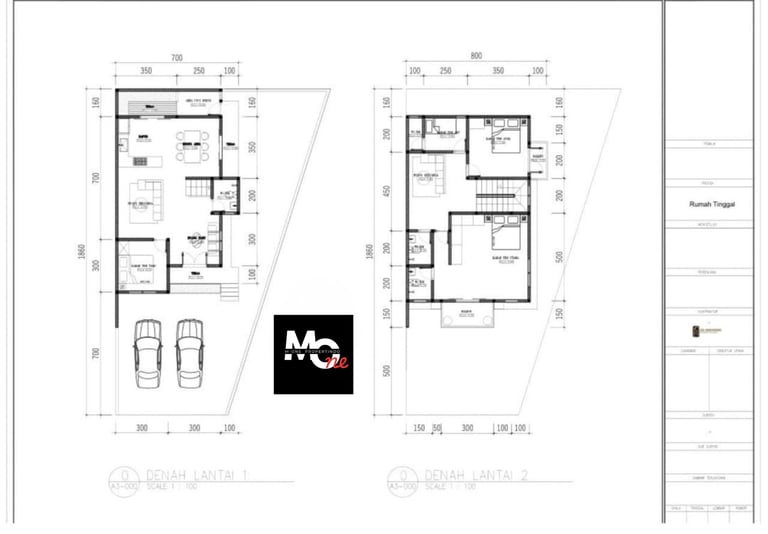
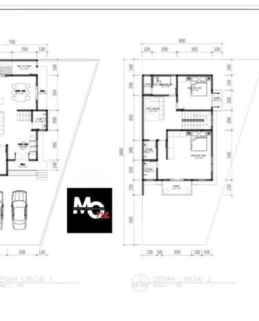
Spesifikasi bangunan
Kavling 169m²
Bangunan 140
3 + 1 K.tidur
3 + 1 K.mandi
Carport 2 mobil dan motor
R.tamu
Dapur
Balkon
Pondasi Batukali & beton bertulang
Dinding bata ringan/hebel
rangka atap baja ringan
Penutup Atap Genteng
Lantai utama granit 60X60
K.mandi full granit
Plafon gypsum
Kusen pintu kayu
Pintu utama panel
Pintu kamar panel
Cat interior/plafon Vinilex setara
Sumur Bor semi jetpump
Torn air 500liter
Listrik 2200 watt
Legalitas SHM IMB PBB






2️⃣ Layout
3️⃣ Progres




